+7(909)380-33-34
Заказать обратный звонок
Полный спектр строительных и монтажных работ в Волгограде и Волгоградской области
г. Волгоград, ул. Мясникова, д.17
m-stroy34@yandex.ru
Пн-Пт: 9:00-17:00
Сб: 10:00-15:00
Выполнение работ от проектирования дома до монтажа розеток
Гарантия качества материалов
Соблюдение строительных норм
Фиксированная стоимость
Поэтапная оплата
Строгое соблюдение сроков
Закажите бесплатную консультацию специалиста

Цена = качество
Строительство дома 120 м2 равноценно 2‑комнатной квартире 40 м2

Капитальный фундамент
Ленточный
Монолитная плита
Сваи с ростверком
ФБС Блок

Кровля
Гибкая черепица
Металлочерепица
Керамическая черепица

Наружная отделка
Клинкер, Кирпич
Фасадная штукатурка

Высокая степень звукоизоляции
Герметичные окна, звукоизоляция перегородок, шум от осадков сведен к нулю

Проверка грунта
Проводим оценку грунта, при необходимости выполняется дренаж и др.
кирпичные дома
Строительство кирпичных домов – проверенная веками техника возведения прочных, долговечных зданий, преимуществами которых на сегодня также выступают их экологичность, пожаростойкость и великолепные шумо-теплоизоляционные качества. Помимо этого, заказать строительство дома из кирпича сегодня означает получить не просто комфортное и надежное, но и статусное жилище, поскольку на фоне экономичных современных стройматериалов кирпичные дома недешевы.
Дома из керамзитобетонных блоков
Строительство домов из керамзитобетонных блоков целесообразно, когда во главу угла ставится скорость производства работ и экономичность конечного результата. Недорогие, теплые и надежные дома из керамзитоблоков обладают высокой влагоустойчивостью, экологичностью и низкой теплопроводностью. Слабыми сторонами таких блоков выступают сравнительно невысокая морозоустойчивость и хрупкость, что обусловлено текстурой материала.
Дома из газоблоков
Строительство домов из газобетонных блоков по сравнительно новой технологии домостроительства обеспечивает жилищам ряд свойств, являющихся преимуществами других, кардинально противоположных конструкций. Теплоизоляционные качества, огнестойкость и устойчивость к температурам кирпича в газоблоках объединены с малым весом и высокой скоростью укладки инновационных быстровозводимых материалов.
Дома из пенобетонных блоков
Строительство домов из пеноблоков рекомендовано в том случае, если есть необходимость в экономии средств на дополнительный обогрев жилищ. Несмотря на то, что пеноблоки «дышат», то есть создают естественную вентиляцию в помещениях, они обладают превосходными свойствами сохранять тепло. Легкость, экологичность и простота обработки для придания любой формы также являются преимуществами этого материала.
Обращаясь в «МастерСтрой», Вам не нужно беспокоиться ни о чем, кроме цвета штор в детской комнате. Все вопросы связанные со строительством мы решим самостоятельно.
Работаем строго по договору
Одновременно мы строим не более 4-х домов. Это позволяет нам лично следить за стройкой и гарантировать качество на каждом этапе, от закупки материалов до декорирования.
Все строительные работы ведутся согласно СНиП.
Все члены собственной бригады обучены и несколько раз проверены в деле. Поэтому мы можем положиться на наших строителей.
Стоимость работ, заложенная в смете, не меняется со временем
Все материалы, которые мы закупаем для вашего дома, сертифицированы.
На все работы мы даем гарантию от 2-х лет.
Ленточный фундамент
Монолитная плита
Сваи с ростверком
ФБС Блок
Профессиональный расчет несущей способности обеспечивает безопасность и надежность строения, а также влияет на сокращение бюджета
Заказать бесплатную консультацию
Оставить заявку на бесплатный выезд на участок
для подбора типа фундамента и подробную консультацию
Выберите свой вариант строительства

Коробка
Фундамент
Стены
Перекрытия
Кровля
Крыльцо
Лестница
Закладные под инженерные сети
Рассчитать стоимость строительства

Под отделку
Коробка
Устройство фасада
Наружные двери
Окна
Электрические работы
Водоснабжение, канализация. отопление
Рассчитать стоимость строительства

"Под ключ"
Под отделку
Вентиляция
Отмостка
Двери межкомнатные
Отделочные работы
Благоустройство
Рассчитать стоимость строительства
Мы не привязываемся только к трём вариантам строительства. Если Вам необходимо, например, залить только фундамент, или возвести только стены - обращайтесь! Мы в кратчайшие сроки произведем сметный расчёт, оповестим Вас о стоимости и после заключения договора произведем качественные работы по умеренным ценам.
Обсудить свой вариант стройки
Строим дома по типовому или индивидуальному проекту
Вы можете выбрать типовой проект дома - это сэкономит Вам неделю времени,
или заказать индивидуальное решение
Проект дома К-125 (71.23 кв.м)
Кирпичные дома и дома из блоков
Проект дома К-125 (71.23 кв.м)
Площадь: 71.23 кв.м.
Материал стен: пеноблок
Габариты дома: 8.00х6.00
Количество этажей: 2
Получить подробную информацию о строительстве дома по данному проекту, заказать расчёт стоимости стройки, Вы можете позвонив по телефону 8(909)380-33-34, или оставьте свои контакты в форме ниже и специалисты нашей компании сами свяжутся с Вами
Проект дома К-062 (75.38 кв.м)
Кирпичные дома и дома из блоков
Проект дома К-062 (75.38 кв.м)
Площадь: 75.38 кв.м.
Материал стен: блок
Габариты дома: 11.80х8.20
Количество этажей: 1
Получить подробную информацию о строительстве дома по данному проекту, заказать расчёт стоимости стройки, Вы можете позвонив по телефону 8(909)380-33-34, или оставьте свои контакты в форме ниже и специалисты нашей компании сами свяжутся с Вами
Проект дома К-008 (75.74 кв.м)
Кирпичные дома и дома из блоков
Проект дома К-008 (75.74 кв.м)
Площадь: 75.74 кв.м.
Материал стен: пеноблок
Габариты дома: 8.20х12.00
Количество этажей: 1
Получить подробную информацию о строительстве дома по данному проекту, заказать расчёт стоимости стройки, Вы можете позвонив по телефону 8(909)380-33-34, или оставьте свои контакты в форме ниже и специалисты нашей компании сами свяжутся с Вами
Проект дома К-203 (84.40 кв.м)
Кирпичные дома и дома из блоков
Проект дома К-203 (84.40 кв.м)
Площадь: 84.40 кв.м.
Материал стен: блок
Габариты дома: 9.00х10.60
Количество этажей: 1
Получить подробную информацию о строительстве дома по данному проекту, заказать расчёт стоимости стройки, Вы можете позвонив по телефону 8(909)380-33-34, или оставьте свои контакты в форме ниже и специалисты нашей компании сами свяжутся с Вами
Проект дома К-111 (96.63 кв.м)
Кирпичные дома и дома из блоков
Проект дома К-111 (96.63 кв.м)
Площадь: 96.63 кв.м.
Материал стен: блок
Габариты дома: 10.20х11.00
Количество этажей: 1
Получить подробную информацию о строительстве дома по данному проекту, заказать расчёт стоимости стройки, Вы можете позвонив по телефону 8(909)380-33-34, или оставьте свои контакты в форме ниже и специалисты нашей компании сами свяжутся с Вами
Проект дома К-201 (95.66 кв.м)
Кирпичные дома и дома из блоков
Проект дома К-201 (95.66 кв.м)
Площадь: 95.66 кв.м.
Материал стен: блок
Габариты дома: 8.60х7.40
Количество этажей: 2
Получить подробную информацию о строительстве дома по данному проекту, заказать расчёт стоимости стройки, Вы можете позвонив по телефону 8(909)380-33-34, или оставьте свои контакты в форме ниже и специалисты нашей компании сами свяжутся с Вами
Проект дома К-161 (92.04 кв.м)
Кирпичные дома и дома из блоков
Проект дома К-161 (92.04 кв.м)
Площадь: 92.04 кв.м.
Материал стен: пеноблок
Габариты дома: 11.20х11.25
Количество этажей: 1
Получить подробную информацию о строительстве дома по данному проекту, заказать расчёт стоимости стройки, Вы можете позвонив по телефону 8(909)380-33-34, или оставьте свои контакты в форме ниже и специалисты нашей компании сами свяжутся с Вами
Проект дома К-180 (83.40 кв.м)
Кирпичные дома и дома из блоков
Проект дома К-180 (83.40 кв.м)
Площадь: 83.40 кв.м.
Материал стен: пеноблоки
Габариты дома: 7.00х8.00
Количество этажей: 2
Получить подробную информацию о строительстве дома по данному проекту, заказать расчёт стоимости стройки, Вы можете позвонив по телефону 8(909)380-33-34, или оставьте свои контакты в форме ниже и специалисты нашей компании сами свяжутся с Вами
Проект дома К-059 (99.55 кв.м)
Кирпичные дома и дома из блоков
Проект дома К-059 (99.55 кв.м)
Площадь: 99.55 кв.м.
Материал стен: блок
Габариты дома: 8.20×8.20
Количество этажей: 2
Получить подробную информацию о строительстве дома по данному проекту, заказать расчёт стоимости стройки, Вы можете позвонив по телефону 8(909)380-33-34, или оставьте свои контакты в форме ниже и специалисты нашей компании сами свяжутся с Вами
Проект дома К-173 (102.37 кв.м)
Кирпичные дома и дома из блоков
Проект дома К-173 (102.37 кв.м)
Площадь: 102.37 кв.м.
Материал стен: пеноблок
Габариты дома: 11.28х8.63
Количество этажей: 2
ЗАМЕНА МАТЕРИАЛА СТЕН В ПРОЕКТЕ
БЕСПЛАТНО!
Получить подробную информацию о строительстве дома по данному проекту, заказать расчёт стоимости стройки, Вы можете позвонив по телефону 8(909)380-33-34, или оставьте свои контакты в форме ниже и специалисты нашей компании сами свяжутся с Вами
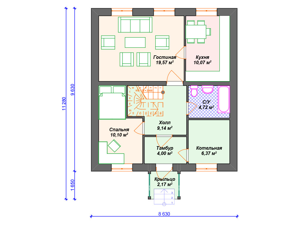
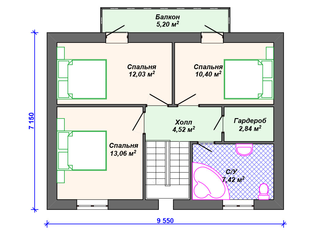
Проект дома К-112 (103.90 кв.м)
Кирпичные дома и дома из блоков
Проект дома К-112 (103.90 кв.м)
Площадь: 103.90 кв.м.
Материал стен: блок
Габариты дома: 7.15х9.55
Количество этажей: 2
ЗАМЕНА МАТЕРИАЛА СТЕН В ПРОЕКТЕ
БЕСПЛАТНО!
Получить подробную информацию о строительстве дома по данному проекту, заказать расчёт стоимости стройки, Вы можете позвонив по телефону 8(909)380-33-34, или оставьте свои контакты в форме ниже и специалисты нашей компании сами свяжутся с Вами
Проект дома К-085 (112.07 кв.м)
Кирпичные дома и дома из блоков
Проект дома К-085 (112.07 кв.м)
Площадь: 112.07 кв.м.
Материал стен: блок
Габариты дома: 9.20х8.40
Количество этажей: 2
ЗАМЕНА МАТЕРИАЛА СТЕН В ПРОЕКТЕ
БЕСПЛАТНО!
Получить подробную информацию о строительстве дома по данному проекту, заказать расчёт стоимости стройки, Вы можете позвонив по телефону 8(909)380-33-34, или оставьте свои контакты в форме ниже и специалисты нашей компании сами свяжутся с Вами
Проект дома К-086 (166.50 кв.м)
Кирпичные дома и дома из блоков
Проект дома К-086 (166.50 кв.м)
Площадь: 166.50 кв.м.
Материал стен: блок
Габариты дома: 12.73х11.89
Количество этажей: 2
ЗАМЕНА МАТЕРИАЛА СТЕН В ПРОЕКТЕ
БЕСПЛАТНО!
Получить подробную информацию о строительстве дома по данному проекту, заказать расчёт стоимости стройки, Вы можете позвонив по телефону 8(909)380-33-34, или оставьте свои контакты в форме ниже и специалисты нашей компании сами свяжутся с Вами
Проект дома К-057 (171.96 кв.м)
Кирпичные дома и дома из блоков
Проект дома К-057 (171.96 кв.м)
Площадь: 171.96 кв.м.
Материал стен: блок
Габариты дома: 11.17×15.85
Количество этажей: 2
ЗАМЕНА МАТЕРИАЛА СТЕН В ПРОЕКТЕ
БЕСПЛАТНО!
Получить подробную информацию о строительстве дома по данному проекту, заказать расчёт стоимости стройки, Вы можете позвонив по телефону 8(909)380-33-34, или оставьте свои контакты в форме ниже и специалисты нашей компании сами свяжутся с Вами
Проект дома К-108 (242.49 кв.м)
Кирпичные дома и дома из блоков
Проект дома К-108 (242.49 кв.м)
Площадь: 242.49 кв.м.
Материал стен: кирпич
Габариты дома: 11.35х13.97
Количество этажей: 2
ЗАМЕНА МАТЕРИАЛА СТЕН В ПРОЕКТЕ
БЕСПЛАТНО!
Получить подробную информацию о строительстве дома по данному проекту, заказать расчёт стоимости стройки, Вы можете позвонив по телефону 8(909)380-33-34, или оставьте свои контакты в форме ниже и специалисты нашей компании сами свяжутся с Вами
Посмотреть еще проекты
В нашем каталоге более 200 типовых проектов на сайте мы представили только самые популярные. Посмотреть остальные проекты Вы можете подъехав к нам в офис по адресу: г. Волгоград, ул. Мясникова, д 17. Или оставьте свои контакты в форме справа, и мы Вам вышлем ссылку на электронный каталог.
В нашем каталоге более 200 типовых проектов
(на сайте представлена только часть из них),
вместе с тем Вы можете заказать разработку
индивидуального архитектурного
проекта в нашей компании
Заказать разработку индивидуального проекта

Также мы осуществляем капитальное строительство домов по проекту клиента. После ознакомления с Вашим проектом мы в кратчайшие сроки произведем сметный расчет, оповестим Вас о стоимости и после заключения договора произведем качественные работы по умеренным ценам.
Получить сметный расчёт по своему проекту
Задать вопрос
ОСТАЛИСЬ ВОПРОСЫ?
Обращайтесь по телефону
8(909)380-33-34 или
напишите нам через форму
Закажите строительство дома
у профессионалов
Заказать строительство дома в компании "МастерСтрой"
или
Получить консультацию специалиста компании "Мастерстрой" по поводу строительства дома
8 909 380 33 34
m-stroy34@yandex.ru
© 2018-2022 Все права защищены.
Полный спектр строительных и монтажных работ в Волгограде и Волгоградской области
ИНН 344109122865
ОГРН 317344300074980
Сайт не является публичной офертой, определяемой статьей 437 ГК РФ
Политика конфиденциальности
Я, субъект персональных данных, в соответствии с Федеральным законом от 27 июля 2006 года № 152 «О персональных данных» предоставляю согласие на обработку персональных данных, указанных мной в форме на сайте в сети «Интернет», владельцем которого является Оператор.
Под персональными данными субъекта персональных данных понимается нижеуказанная общая информация: ФИО, адрес электронной почты и номер телефона.
Принимая настоящее Соглашение, я выражаю свою заинтересованность и полное согласие, что обработка персональных данных может включать в себя следующие действия: сбор, систематизацию, накопление, хранение, уточнение (обновление, изменение), использование, передачу (предоставление, доступ), блокирование, удаление, уничтожение, осуществляемых как с использованием средств автоматизации (автоматизированная обработка), так и без использования таких средств (неавтоматизированная обработка).
Я понимаю и соглашаюсь с тем, что предоставленная информация, является полной, точной и достоверной; при предоставлении информации не нарушается действующее законодательство Российской Федерации, законные права и интересы третьих лиц; вся предоставленная информация заполнена мною в отношении себя лично; информация не относится к государственной, банковской и/или коммерческой тайне, информация не относится к информации о расовой и/или национальной принадлежности, политических взглядах, религиозных или философских убеждениях, не относится к информации о состоянии здоровья и интимной жизни.
Я понимаю и соглашаюсь с тем, что Оператор не проверяет достоверность персональных данных, предоставляемых мной, и не имеет возможности оценивать мою дееспособность и исходит из того, что я предоставляю достоверные персональные данные и поддерживаю такие данные в актуальном состоянии.
Согласие действует по достижении целей обработки или в случае утраты необходимости в достижении этих целей, если иное не предусмотрено федеральным законом.
Согласие может быть отозвано мною в любое время на основании моего письменного заявления.
Данный сайт использует Cookie
Редактируемый текст